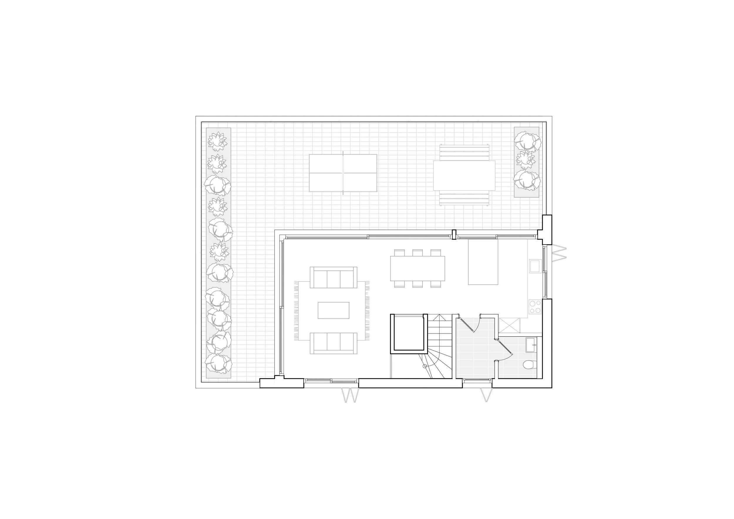
Haus Greppen
Adresse
Greppen
Leistungen
Vorprojekt, Bauprojekt, Bewilligungsverfahren, Ausführungsplanung, Ausführung
Auftraggeber
Privat
Baujahr
2022
Standards
Eigentumstandard
Adresse
Greppen
Leistungen
Vorprojekt, Bauprojekt, Bewilligungsverfahren, Ausführungsplanung, Ausführung
Auftraggeber
Privat
Baujahr
2022
Standards
Eigentumstandard