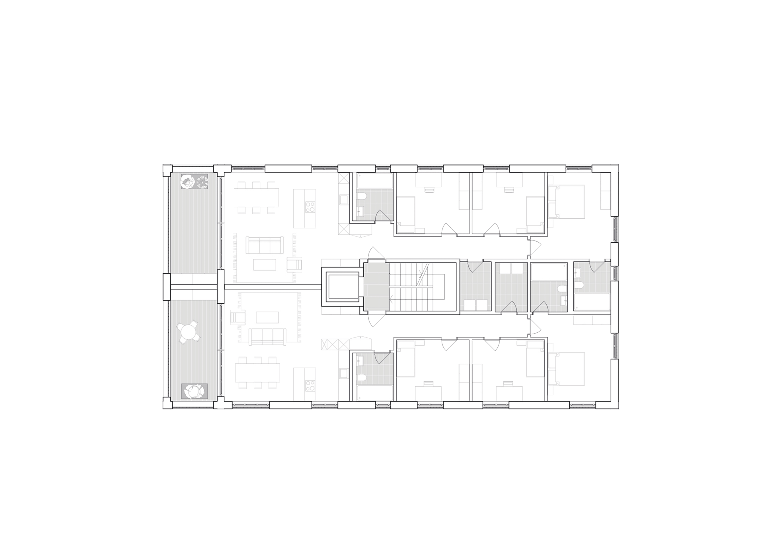
MFH Juraweg
Adresse
Juraweg 3, Sarmenstorf
Leistungen
Vorprojekt, Bauprojekt, Bewilligungsverfahren
Auftraggeber
Privat
Baujahr
2022
Standards
Eigentumstandard
Adresse
Juraweg 3, Sarmenstorf
Leistungen
Vorprojekt, Bauprojekt, Bewilligungsverfahren
Auftraggeber
Privat
Baujahr
2022
Standards
Eigentumstandard